Bifamiliare in vendita

Casoria, Via Carioli benedetto Casoria - Casoria Zona Residenziale
€ 420.000
6 locali 6 locali
400 Mq 400 Mq
3 bagni 3 bagni

Bifamiliare in vendita

Casoria, Via Carioli benedetto Casoria - Casoria Zona Residenziale

Descrizione annuncio

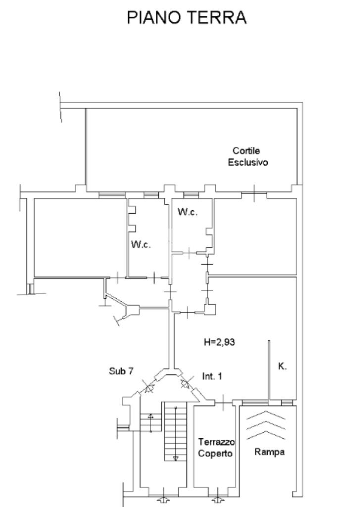
Via Carioli Benedetto:

in zona residenziale, bifamiliare con terrazzo di copertura, piano seminterrato con discesa per le auto e spazio esterno.

La soluzione si compone di due appartamenti, entrambi al piano rialzato.

Il primo apaprtamento offre una metratura interna di circa 60 mq suddivisi in cucina, soggiorno, camera da letto e bagno. Vi sono inoltre due terrazzi coperti ed il cortile privato al quale è possibile accedere anche con le auto.

Il secondo appartamento, invece, è di 120 mq ed è suddiviso in ingresso in cucina-living, camera da letto, cameretta, bagno e lavanderia. Anche questo appartamento ha l'accesso al giardino restrostante e un piccolo terrazzino dal quale è possibile anche accedere direttamente all'immobile, ricreando un ingresso totalmente indipendente dall'immobile precendente.

In comune i due appartamenti hanno il terrazzo di copertura che ha una metratura complessiva di circa 300 mq ed il piano semi-interrato al quale è possibile accedere anche con le auto.

La soluzione è molto indicata per chi desidera l'indipendenza e spazio esterno.

La zona è residenziale, ideale per chi vuole abitare in una zona distaccata dal caos di città.

Vuoi maggiori informazioni ?
Vuoi fissare un appuntamento?
Chiama al 081.185.759.25. Puoi scriverci anche tramite whatsapp salvando il nostro numero fisso in rubrica.

Mostra tutto

Nelle vicinanze

Trasporto pubblico Trasporto pubblico
stazione di Casoria-Afragola
stazione di Casoria-Afragola
1,5 Km
Casoria-Afragola
Casoria-Afragola
1,5 Km
Fermata via Giuseppe Mazzini
Fermata via Giuseppe Mazzini
1,5 Km
Stazionamento autobus CTP
Stazionamento autobus CTP
1,6 Km
Ricariche auto elettriche Ricariche auto elettriche
IKEA Napoli
2,7 Km
Scuole Scuole
Scuole
770 m
I.T.C. Emilio Sereni
960 m
IS "A.Torrente"
1,1 Km
Domus Pueri II
1,3 Km
Istituto Brando Casoria
1,6 Km
Farmacia Farmacia
Parafarmacia Conad
480 m
Farmacia
1,1 Km
Farmacia Tuccillo
1,5 Km
Farmacia De Vita
1,6 Km
Farmacia Sant'Antonio dei dottori A. & M Della Camera
1,6 Km
Ospedali Ospedali
Ospedale Santa Maria della Pietà
1,6 Km
Distretto Sanitario
2,4 Km
Ospedali
3,0 Km
Supermercati Supermercati
Conad
440 m
Euro Spin
1,4 Km
MegaMercato - SISA
1,5 Km
Conad Arzano
1,7 Km
SISA - MegaMercato
1,9 Km
Negozi Negozi
Negozi
1,6 Km
OVS
2,7 Km
United Colors of Benetton
2,9 Km
Bar Bar
Business Caffè
380 m
Bar Fimiani
1,0 Km
Nero fumo
1,1 Km
Karma
1,5 Km
Centro America
1,6 Km
Ristoranti Ristoranti
Ristoranti
610 m
Pizzeria Gelsomino
1,1 Km
My Day
1,4 Km
Muntaniello
1,5 Km
N'dringte n'dra
1,6 Km
Mostra tutto

Caratteristiche

Rif.:
61142256
Piano:
1 di 1 (Piano basso)
Box:
1
Posti auto:
6
Balconi:
2
Terrazzi:
5
Mostra tutto
Prezzo Prezzo
€ 420.000
Rata mutuo Rata mutuo
€ 1.980 / mese
Spese annue Spese annue
€ 0
Proponi il tuo prezzoProponi il tuo prezzo

Classe Energetica

G
G
G
G
G
G
G
G
G
Anno di costruzione:
1980
Riscaldamento:
Autonomo
Tipo impianto:
A radiatori
Tipo alimentazione:
Altro

Ti interessa visionare l'immobile?

Fissa un appuntamento  Fissa un appuntamento

Richiedi informazioni

Clicca su Leggi per aprire l'informativa
* Questi campi sono obbligatori

Calcola il tuo mutuo

Semplice e senza impegno
Anticipo

( % )
Mutuo

( % )

pochi semplici passi

inserisci i tuoi dati
Questionario completato
Grazie per aver richiesto un appuntamento senza impegno con un nostro Consulente del Credito e Assicurativo.

Hai inserito correttamente tutti i dati necessari e a breve riceverai una e-mail con un link da convalidare per inviare i tuoi dati.
Affiliato
Sviluppo Immobiliare 2 Srl
P.zza Santa Croce, 1 80026 Casoria (NA)

Il nostro staff


  • Alfredo Romano
    Affiliato

  • Antonella Caropreso
    Coordinatrice

  • Mirko De Luca
    Collaboratore

  • Gennaro Meola
    Responsabile

  • Ivan Romano
    Collaboratore
P.zza Santa Croce, 1 80026 Casoria (NA)
Zona: Casoria
Mostra su mappa
Orari: 9.00 - 13.30 ; 14.30 - 19.00 (SABATO CHIUSURA ORE 13.30)
Affiliato
Sviluppo Immobiliare 2 Srl
P.zza Santa Croce, 1 80026 Casoria (NA)

2026 Tecnocasa Franchising S.p.A. - P. IVA 08365160152 - Via Monte Bianco 60/A 20089 Rozzano (MI). Ogni agenzia ha un proprio titolare ed è autonoma. Privacy policy | Policy utilizzo | Cookie policy